グランディールⅡ 302
- 家賃
- 45,000円
- 共益費
- 0円
- 敷金/礼金
- 0円 /0円
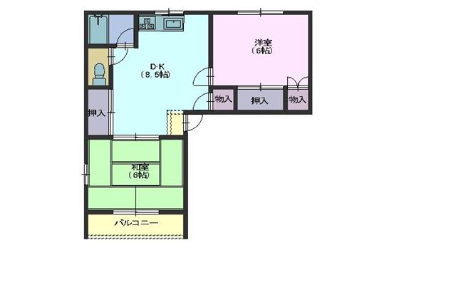
- 間取り/専有面積
- 2DK/ 44.25㎡
物件概要
- 物件名
- グランディールⅡ 302
- 住所
- 福井県小浜市小浜住吉107番地
- 家賃/共益費
- 45,000円/0円
- 駐車場について
-
- 無
駐車場空き無し(R7.6.30時点) - 無
- 敷金/礼金
- 0円/0円
- 間取り
- 2DK
- 専有面積
- 44.25㎡
こだわり条件
0円プラン
10万円プラン
敷金・礼金0
仲介手数料0
オール電化
ネット無料
ペット可
新築
オートロック
